平湖房产网 > 资讯中心> 楼市周刊

【壹周报】新地标!平湖这里将打造国际风情商业街

来源:平湖房产网(www.ph-fc.com)  2023-04-04 17:14:00

摘要:带着美好的心情,跟随壹周君一起来看看,上周平湖楼市发生了哪些事吧
2023年供地计划公布
平湖这里打造国际风情商业街
2023起“房户一致优先”暂缓
平湖这里将新建一个公园
                       
预售公示



(鸟瞰图)
3月31日,市建设局发布了一则预售许可公示,公示的正是位于位于平湖市曹桥街道横河路东侧、卫生院南侧的悦湖里。
该项目容积率为2.0,绿地率34.14%,建筑密度为18.77%,整个小区共计有1096户, 以及配有1368个机动车车位。次预售的楼栋为11#、13#、14#(部分房源)、多层5#、6#,共计5幢。
户型产品:建面约70㎡-75㎡-86㎡-89㎡-95㎡。

   

供地计划



近日,平湖2023年的供地计划公布,计划显示,平湖市2023年度国有建设用地供应计划总量为446.0584公顷,折合6690.88亩,其中嘉兴港区52.3945公顷,折合785.92亩


其中住宅用地安排97.1751公顷(1457.63亩),占总量的21.79%,其中商品住宅用地47.1551公顷(707.33亩),各类安置房等其他住宅用地50.0200公顷(750.30亩)。


今年计划挂牌出让的12宗住宅用地究竟在哪?【点击查看】



一手住宅



以上图表数据仅包含高层、多层等一手商品住宅,不含别墅类产品;数据来源为市场调研,非备案数据,非案场实际成交数据;调研区域主要为当湖街道、钟埭街道等主城板块;数据仅供参考。

上周(3.27-4.2),平湖主城区新增一则预售证公示,公示期将于2023年4月5日截止。

据市场调研数据统计,上周主城区一手房共计成交约12套,较前一周增加了2套。

近期,一手房成交量比较低迷,房地产市场呈现下行态势,当前整体上处于筑底阶段。

 


截止到4月2日,平湖主城区一手房总库存量约为46.7万方,较前一周减少了0.1万方,呈现缓慢下降趋势。


上周去化的楼盘主要集中在悦宸里、林语湖院、传承樾府、四季华庭东福城、花漫里。按目前的去化速度,库存去化周期可能会相对延长一些。

宏观政策



01

全国


杭州:二批次供地揽金145亿元


3月29日,杭州第二批次土地拍卖10宗地块揽金144.8亿元,总出让面积31万平方米,总成交规划建筑面积74.76万平方米,总起拍价131.4亿元。最终以6宗触顶、2宗溢价、2宗底价收官,成交楼面均价19370元/平方米,平均溢价率10.2%。

绿城、滨江集团均连落两子,绿城分别以32.46亿元竞得杭政储出[2023]22号,成交楼面价25515元/平方米,溢价率为10.94%;以底价5.38亿元摘得杭政储出[2023]26号,成交楼面价10500元/平方米。

滨江集团分别以底价5.21亿元摘得杭政储出[2023]30号,成交楼面价10500元/平方米;以5.87亿元竞得杭政储出[2023]24号,成交楼面价9158元/平方米,溢价率为1.73%。其余6宗地块触顶待摇号。

(来源:中房网)



02

全国


北京:启动“带押过户”模式交易


3月31日,北京市正式启动存量住房交易“带押过户”模式。居民在出售在京住房时不再需要提前结清房屋现有按揭贷款,可在原抵押权不解除的情况下直接办理住房所有权转移登记,且买卖双方可在不同银行贷款,极大便利居民住房交易,降低交易成本。


为保证居民能够顺利办理“带押过户”,前期,有关部门系统开展了流程规划和基础设施建设等工作。北京市“带押过户”模式有三方面突出特点和优势


  • 兼容跨行贷款。

  • 最大程度降低交易成本。

  • 多部门协同提升交易便利度。


北京市启动住房交易“带押过户”是一项便利市民百姓的重要举措,是对住房交易、登记和金融服务流程的有效创新。下一步,有关部门将根据居民实际需求,进一步加强工作协同、优化业务办理流程,持续完善住房交易“带押过户”模式。

   (来源:中房网


03

本地


平湖这里打造国际风情商业街


日前,浙江省首批城市更新省级试点名单出炉,平湖经济技术开发区永兴片区榜上有名。未来,这一片区将迎来全新蜕变,为全面推进产城融合发展注入新动能。


在红建花苑东门口有11000平方米的沿街商铺目前处于闲置空关的状态,这些沿街商铺因为业态杂乱且相对落后,已不能满足周边居民的需求。



以此次片区更新为契机,平湖经开将对此进行回收,并采用整体化运营模式,通过引入高端业态,将其打造成为国际风情商业街区、国际邻里服务街区,实现存量空间的活化利用,未来这里也将成为平湖经开的旅游新地标。


推动旧商业区的活力提升主要包括外立面改造提升、室内重新装修和沿线铺装的改造提升三方面,会增加一些公共景观空间,来实现该片区整体活力的提升



此外,永兴片区更新还将结合未来社区创建,聚焦公共空间品质提升,老旧小区改造提升,既有建筑改造提升等方面进行分期实施,其中以国际商业街为主的一期项目将于今年上半年开工,计划下半年开街,后期还将有序推进片区营地公园、体育公园、儿童公园及国际住区建设。

(来源:平湖发布)

  


04

本地


2023起“房户一致优先”暂缓


根据我市统筹招生范围学校布点和学位供给情况,经专题调研,综合分析评估,现就2023 年相关招生政策公布如下:


一、原拟从2023年起统筹招生范围内实行“房户一致优先”批次录取的政策,决定暂缓实施。


二、三港新城(三港嘉苑、文丰花苑)、怡水嘉苑和东方绿洲四个小区内符合统筹招生初中学校新生报名条件的六年级毕业生“小升初”的,自2023年秋季起划入文涛中学招生范围。房产、户籍在上述四个小区且在统筹招生范围外在读的初中学生2026年7月起可办理转入统筹招生学校手续。


又是事关孩子入学的大事,【点击查看】

(来源:平湖教育

      


05

本地


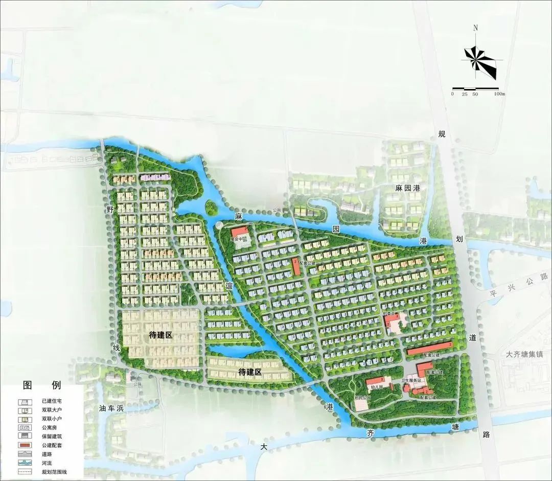
新埭大齐塘花苑的农房开工建设


日前,位于新埭镇大齐塘村友谊港桥西侧的大齐塘花苑的农房正在紧锣密鼓地建设中,该地块项目是全市“X”点布局调优工作以来新埭镇首个开工建设的新社区。


效果图

另外,星光村星光景苑三期、鱼圻塘村南池苑、牌楼村溪漾小区,三个调优“X”点新社区也正在前期准备中。从“两分两换”到整村整组搬迁再到全域宅基地置换公寓房行动,新埭镇一直走在全市农民住房改善工作的前列。


实地

在新一轮农民住房改善行动中,平湖计划改善农民住房2000户以上,新建高品质城镇安置房8000套以上。今年,除了调优“X”点新社区农民建房外,“1”点公寓房建设方面也在加快进度。新埭镇吴泾二期公寓房已开工建设,可安置套数1600余套;独山港镇龙吟花苑三期、星海花苑项目陆续启动,同时在建的港城花苑、名秀花苑、凤舞佳苑西区二期持续发力加速推进中,可用于安置套数约4500多套。

(来源:平湖新埭)



06

本地


平湖这里将新建一个公园


今年我市《政府工作报告》中提出:要突出精雕细琢,绘蓝图、展宏图建设典范城市新样板。以省5A级景区城创建和“公园城市”建设为抓手,不断提升综合承载力和辐射带动力,打造江南水韵景区城。近日,我市又一口袋公园项目即将开工建设,效果图抢先看。


▲总体效果图

项目位于城西路北侧、平善大道西侧,总投资约600万元,用地面积约3000㎡,将以“公园客厅、共享家园”为理念,坚持以人为本的核心原则,打造城市休闲绿地


▲效果图

结合周边居民的需求,项目将划分休闲绿道、户外交流空间、老人儿童活动空间、绿化组团造景等多个功能区,努力为周边居民营造一个健康、舒适、安全的户外活动空间,不断提高居民的生活质量,提升幸福感。

(来源:平湖发布)

   

楼盘动态


楼盘

01


天樾府:第三届明湖风筝音乐节


春光明媚,春色渐浓,处处都春意萦绕。当春风轻拂,又到了放飞风筝的好时节。为此,城投鸿翔·天樾府携手明湖景区,举办第三届明湖风筝音乐节活动,体验亲近自然的自在生活,赴一场清新春日之约。




        免责声明:本网部分文章和信息由相关主体或人员提供,本网刊登并不意味着赞同其观点或证实其内容的真实性。如涉及真实性等问题,请立即联系管理员,我们会予以更改或删除相关文章,保证您的权利。对使用本网站信息和服务所引起的后果,本网站不作任何承诺。本资料涉及图片、音频素材均来自于网络,仅供文章渲染所用,不作为其他任何用途,如涉及侵权请联系我司删除。
关注房产微信
关注视频号
关注我们,获取更多优惠!